ザ・レジデンス三ノ輪

賃料 21万円

1/2

物件番号「11303」をお伝えください。

電話でお問合せ LINEでお問合せ

物件情報

物件名 ザ・レジデンス三ノ輪
号室 1502
賃料 21万円
管理費等 10,000円
敷金/保証金 220,000円/-
礼金 220,000円
タイプ マンション
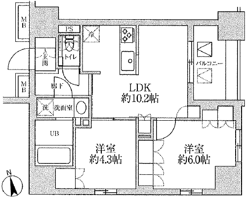
間取 2LDK
所在地
荒川区南千住1丁目 地図
番地 1-19
学区 第六瑞光小学校/第一中学校
交通 東京メトロ日比谷線 三ノ輪駅まで 徒歩6分
JR常磐線 南千住駅まで 徒歩12分
つくばエクスプレス 南千住駅まで 徒歩12分
面積 50m²
建物構造 鉄筋コンクリート造
階/階建 15階/15階建
棟総戸数 42戸
向き
駐車場 空有27,500円
保険 22,000円 2年
契約期間 2年
更新料 220,000円
引渡時期 相談
12/26退去予定、12/22~内見可能
取引態様 仲介
仲介手数料 1ヶ月
築年月 2019/06
諸費用 町会費/月 200円
鍵交換代(税込) 27,500円
特色 バストイレ別、室内洗濯機置場、エアコン、追焚バス、インターネット無料、エレベータ、オートロック、独立洗面台、二階以上、温水洗浄便座、浴室乾燥機、宅配ボックス、ガスキッチン、洋室、2口以上コンロ、収納、クローゼット、バルコニー、モニター付インターホン、駐車場、駐輪場、バイク置場、ペット相談、保証会社加入必須、短期違約金有
コメント 設備充実の賃貸マンション。人気の三ノ輪商店街、オリンピック、イトーヨーカドー至近で買物便利。日比谷線三ノ輪駅の他、都電荒川線荒川一中前駅も徒歩2分です。小型犬or猫・2匹まで飼育可 (ペット飼育時は敷金1ヶ月分積み増し)
※掲載されている物件データが現状と異なる場合は現状を優先します。

更新情報

情報更新日 2025年12月16日
次回更新予定日 2025年12月17日

物件番号「11303」をお伝えください。

電話でお問合せ LINEでお問合せ
電話 メール LINE
簡易お問合せ

お名前


メールアドレス


問合せ内容