|
||||||
| 住所 | 敷金 礼金 |
間取り 面積 |
タイプ 構造 |
入居時期 | 築年月 | 駐車場 |
|---|---|---|---|---|---|---|
| 荒川区南千住3丁目 | 1ヶ月 0ヶ月 |
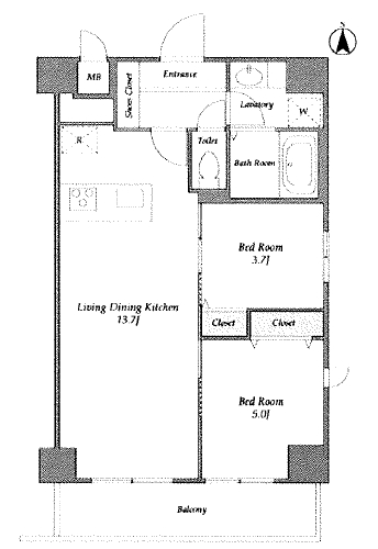
2LDK 50.68m2 |
マンション 鉄筋コンクリート造 |
相談 | 2021/12 | 空無 |
南千住徒歩3分、築浅マンション!南向きのファミリータイプのお部屋です!防犯カメラ、オートロック完備でセキュリティ万全!ローソン(約100m)
| 物件番号 | 11236 | ||
|---|---|---|---|
| 交通 | 東京メトロ日比谷線 南千住駅まで 徒歩3分 JR常磐線 南千住駅まで 徒歩3分 つくばエクスプレス 南千住駅まで 徒歩3分 |
小・中学校区 | |
| 向き | 南 | 階/階建 | 6階/9階建 |
| 共益費 | ¥10,000 | 火災保険 | 要加入 |
| 保証金 | 敷引 | ||
| 契約期間 | 2年 | 取引態様 | 仲介 |
| 間取詳細 | 洋5、洋3.7、LDK13.7 | ||
| 入居概算費用 | ¥848,490 | 保障会社利用 | 必須 総賃料の20% 2年目〜1万円+口座引落手数料 |
| 特色 | バストイレ別、室内洗濯機置場、インターネット無料、エアコン、エレベータ、オートロック、独立洗面台、温水洗浄便座、浴室乾燥機、宅配ボックス、ガスキッチン、システムキッチン、2口以上コンロ、南向き、洋室、クローゼット、バルコニー、CATV、BS、保証会社加入必須、駐輪場、礼金なし、初期費用少なめ | ||
※掲載されている物件データが現状と異なる場合は現状を優先します
![]()
- 株式会社 川の手不動産
- TEL:03-3807-3232
- FAX:03-3807-3260
- >>関連の沿線・駅名から検索
- 物件一覧 -- 東京メトロ日比谷線 南千住駅 -- 間取一覧 -- 写真一覧
- 物件一覧 -- JR常磐線 南千住駅 -- 間取一覧 -- 写真一覧
- 物件一覧 -- つくばエクスプレス 南千住駅 -- 間取一覧 -- 写真一覧


